Company
About Us
Testimonials
Careers
Policies
FAQ
Resources
House Plans
Photo gallery
Contact
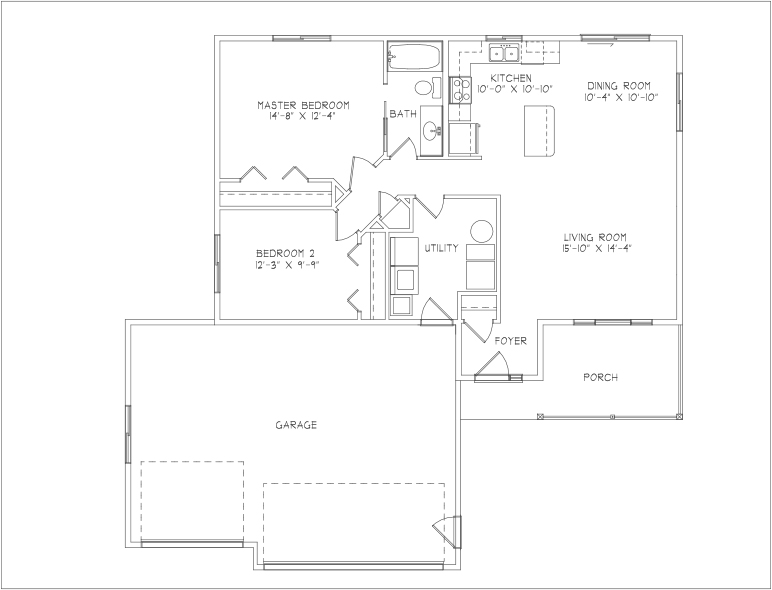
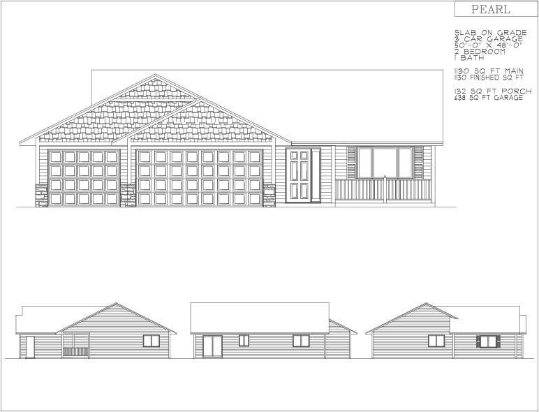
MN House Plan
PEARL 1130 SQ FT SLAB ON GRADE
MN House Plan
PEARL 1130 SQ FT SLAB ON GRADE
Name:
PEARL 1130 SQ FT SLAB ON GRADE
Bedrooms:
2
Baths:
1
Stories:
1
Garages:
Attached
Price:
$450.00
Length:
50
Width:
48
Album:
505
Type:
SLAB ON GRADE
Call Us Today To Purchase Or For More Information
Get In Touch
Contact us Now
Submit
©
Minnesota’s Best House Plan. All right reserved